Shaw Crescent, South Croydon

Sold Subject to Contract £875,000

4
This impressive four-bedroom detached house offers spacious, versatile accommodation ideal for modern family living. Boasting approximately 1,600 square ft across two floors, the property features multiple reception rooms, a generously sized kitchen, and bright, well-proportioned bedrooms. Large windows provide excellent natural light throughout, creating a bright and welcoming atmosphere. The home also offers scope for modernisation or extension (subject to planning permission), allowing buyers to personalise the space further.



Externally, the property benefits from a private rear garden, perfect for entertaining or family use, along with off-street parking and an integrated garage.



Council Tax Band G
  • Walking distance to Village Green
  • Wide Plot with Ample Parking
  • Scope for Further Extension (stpc)
  • 4 Double Bedrooms
  • Attractive, Extended Detached Home
  • Sought After Road
  • Well Tended, Level Rear Garden
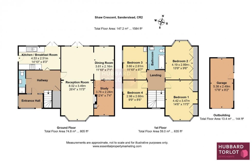
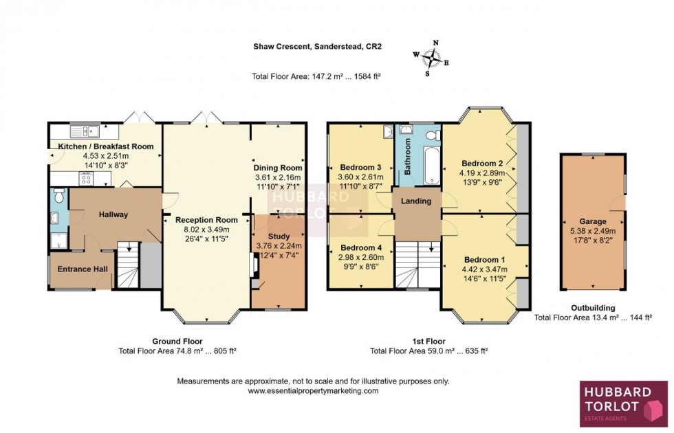
Floorplan for Sanderstead, South Croydon
EPC Graph for Sanderstead, South Croydon
Similar Properties

Get an instant online valuation

Find out how much your property is worth