Morley Road, Sanderstead

Sold Subject to Contract Offers in Excess of £1,050,000

4
Positioned on one of the area's most desirable tree-lined roads and within easy walking distance of two mainline stations serving London Bridge and Victoria, this outstanding, extensively remodelled detached residence delivers over 2,000 sq ft of exquisitely appointed living space.



Created as a true "forever home", the property has been extended and reimagined with an uncompromising approach to quality, design and finish. Every detail has been carefully considered, resulting in a home that blends elegant aesthetics with exceptional practicality. A viewing is essential to appreciate the scale, craftsmanship and atmosphere this remarkable home provides.



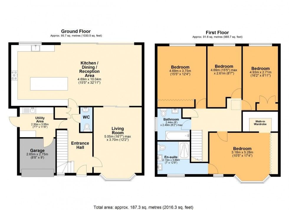
The experience begins in the generous entrance hallway, where tiled wood-effect flooring sets a refined yet contemporary tone, complemented by a graceful staircase rising to the first floor. Double doors open into a beautifully composed front lounge, centred around a feature wood-burning stove and enhanced by a bay window dressed with bespoke shutters creating a sophisticated yet inviting retreat.



Pocket hide-and-slide doors reveal the showpiece of the home: a magnificent open-plan kitchen, dining and family space, forming part of a high-specification extension completed within the past five years. Designed as the ultimate setting for both everyday living and stylish entertaining, this space is nothing short of spectacular.



The bespoke kitchen features an extensive range of cabinetry incorporating a dedicated coffee station, Neff Slide & Hide oven, separate microwave/steam oven, AEG five-ring induction hob with extractor, Shaws oversized Butler's sink with Quooker tap, and integrated dishwasher. Matte marble-effect quartz worktops add a luxurious finish, while the substantial central island is illuminated by statement Cotswold Company pendant lighting creating a natural gathering point for family and guests alike.



There is abundant space for a full dining suite and relaxed seating area, making this a truly sociable heart of the home. Floor-to-ceiling, triple-glazed sliding doors span the rear elevation, bathing the room in natural light and opening seamlessly onto a westerly-facing stone terrace and lawn beyond, perfect for alfresco dining and evening sunsets.



A separate utility room, fitted to the same high standard, offers additional storage and appliance space, with access to a garage/store housing the Vaillant boiler, Mega-flow system and water softener. The ground floor is completed by an exceptional cloakroom featuring bespoke Sandberg wallpaper, a stone basin set on a cantilevered stone surface, and designer Pooky lighting, a striking statement space.



Upstairs, a bright and architecturally interesting landing with vaulted ceiling, Velux window and linen storage leads to four beautifully proportioned double bedrooms. The principal suite is a sanctuary, featuring fitted wardrobes, a dedicated dressing room concealed behind a pocket sliding door, and a luxurious en-suite shower room finished to an impeccable standard, showcasing Parker & Howley free-standing his-and-hers Vitra basins and elegant Pooky lighting.



Bedroom two also benefits from fitted wardrobes, while the remaining bedrooms offer generous accommodation. A refined family bathroom serves the first floor, complete with a cantilevered basin and integrated drawers, a touch-lit mirror and layered mood lighting, continuing the home's theme of understated luxury.



A wide driveway to the front completes this home



This is a rare opportunity to acquire a substantial, design-led family home in a prime residential setting, where craftsmanship, comfort and contemporary elegance come together effortlessly.
  • Magnificent Detached Home
  • Skillfully Extended
  • Westerly Facing Rear Garden
  • Walking Distance to 2 Stations
  • Lounge with "Wood Burner"
  • Superb Kitchen/Diner/Family Room
  • Utility Room & Cloakroom
  • 4 Double Bedrooms & 2 Bathrooms
Floorplan for Morley Road, Sanderstead
EPC Graph for Morley Road, Sanderstead
Similar Properties

Get an instant online valuation

Find out how much your property is worth