Junction Road, South Croydon

For Sale Offers in Excess of £400,000

2
A rare opportunity to acquire a delightful two double-bedroom home situated on a highly desirable tree-lined road in South Croydon.



The property features two generously sized double bedrooms and a spacious open-plan living and dining area, ideal for both relaxing and entertaining. To the rear is a beautiful, established garden with mature trees including magnolia, Californian lilac, apple, and plum. Two York stone patios further enhance this attractive outdoor space.



The fitted shaker-style kitchen includes a newly installed 1½ bowl Blanco stainless steel sink and tap, an integrated fridge and freezer, and a Miele gas hob.



The home retains many charming period features along with carefully considered additions, including a magnificent Georgian-style stained-glass front door and a traditional three-piece Royal Doulton bathroom suite.



Recently redecorated in neutral tones and fitted with new 100% wool carpets throughout, the property is ready for immediate occupation and will appeal both to discerning buyers and to landlords seeking to expand their portfolio.



Conveniently located opposite Whitgift School and within close proximity to local shops, restaurants, bus routes, and South Croydon train station, the property is ideally placed for commuters travelling into London.



Dating back to circa 1927, the property is believed to have originally been a bakery and includes a charming brick-built "bake house," previously used as a studio with its own electricity supply.



Additional benefits include off-street parking for one small car.
  • character 2 bed EOT family house
  • Through Lounge
  • Two double bedrooms
  • Downstairs bathroom
  • Fitted Kitchen
  • Old brick built bake house in garden
  • OSP for one small car
  • Beautiful Character Features Throughout
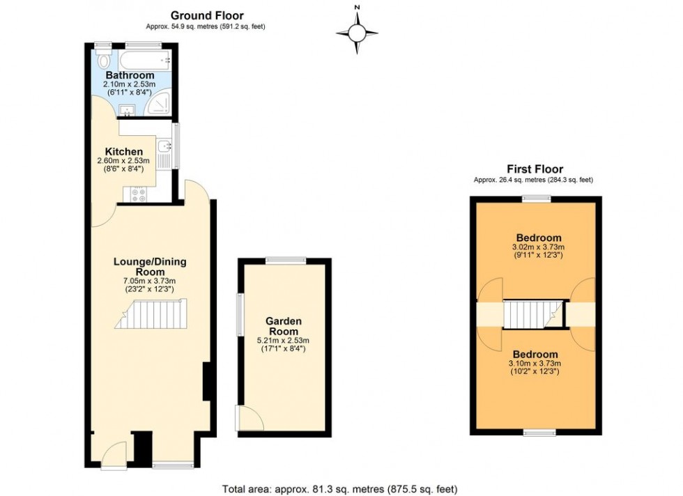
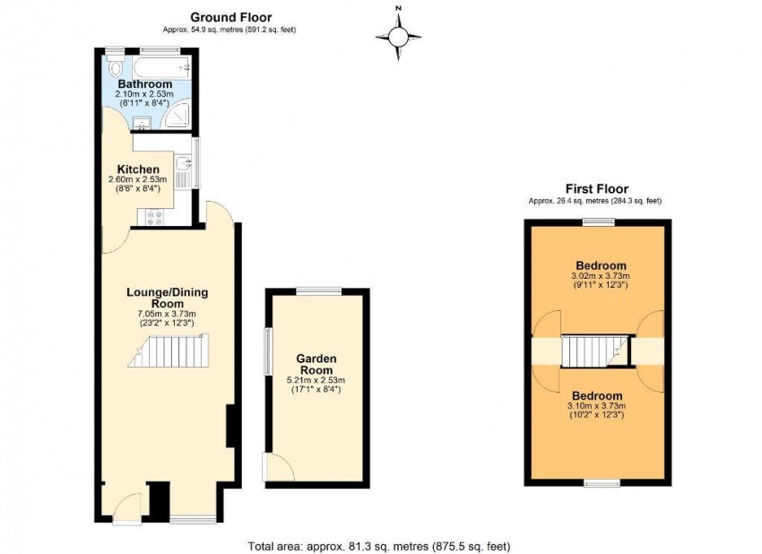
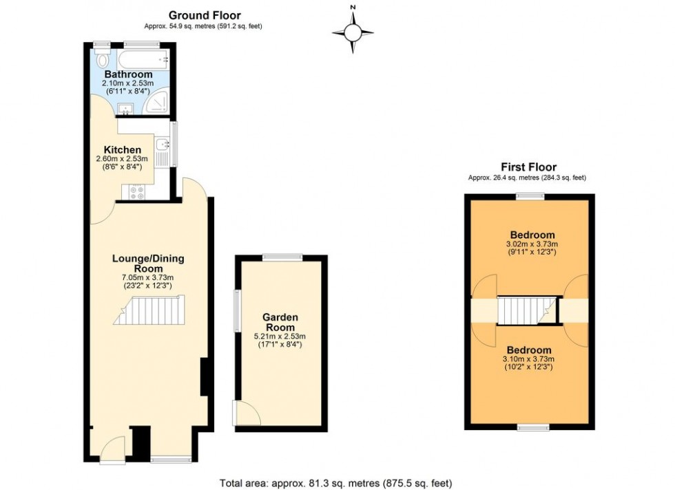
Floorplan for Junction Road, South Croydon
EPC Graph for Junction Road, South Croydon
Similar Properties

Get an instant online valuation

Find out how much your property is worth