Parkside Mews, Warlingham

For Sale Guide Price £695,000

4
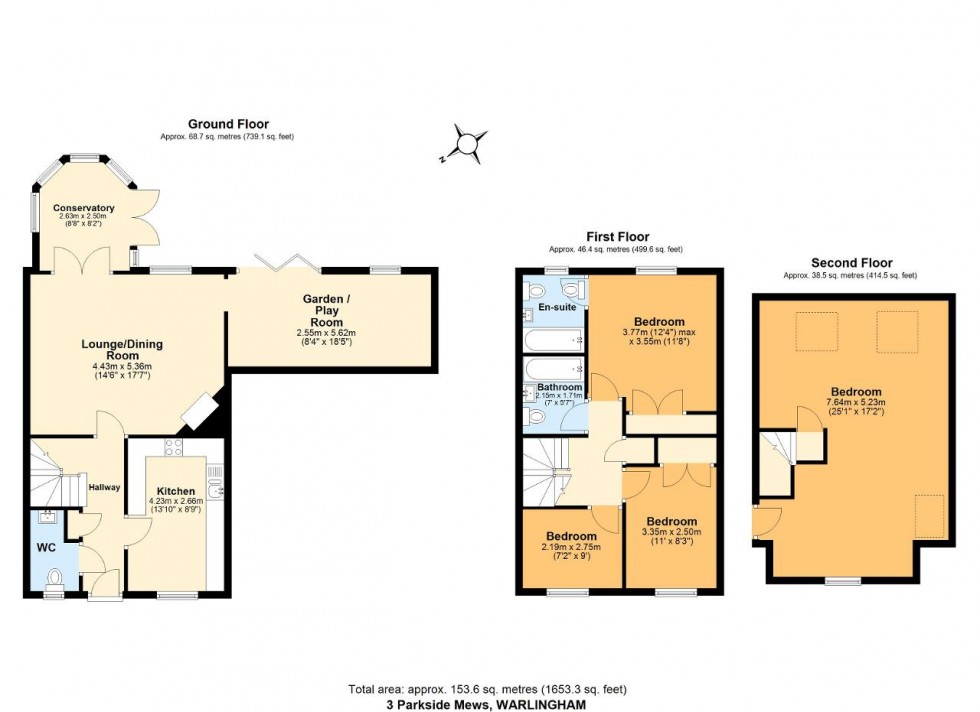
Situated within the prestigious Great Park development in Warlingham, 3 Parkside Mews is a well-presented four-bedroom end of terraced home offering comfortable and practical living across three levels, with an impressive total floor area of approximately 1,650 sq ft. The property features four generously sized bedrooms, two well-appointed bathrooms, one being ensuite to the master bedroom along with an additional ground-floor w.c, providing excellent convenience for busy family life. Bright, well-proportioned living spaces flow seamlessly into a charming conservatory, adding versatility and natural light to the ground floor. The home also benefits from a dedicated garden/play room, ideal for children, hobbies/work from home space or additional relaxation space. A functional layout throughout ensures flexibility for modern living, while the inclusion of a reserved parking space adds further everyday practicality to this appealing property. The property boasts stunning views to the front over the grounds of Great Park and beyond. This secure development is enclosed by private gates, providing ample open ground and fabulous space for walking.
  • Four-Bedroom Mews Style Home
  • Approx. 1,650 sq ft of Accommodation
  • Two Bathrooms & Ground Floor W.C
  • 3 Reception Areas
  • Conservatory
  • Fitted Kitchen/Breakfast Room
  • Level Rear Garden with Stunning Views
  • Sought After Great Park Development
Floorplan for Parkside Mews, Warlingham
EPC Graph for Parkside Mews, Warlingham
Similar Properties

Get an instant online valuation

Find out how much your property is worth