Kingswood Way, South Croydon

For Sale Offers in Excess of £1,000,000

4
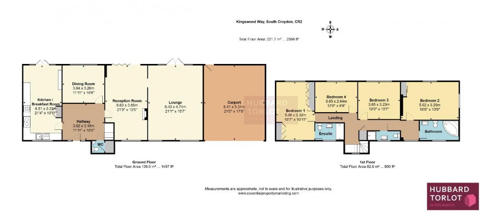
An Exquisite 4-Bedroom Family Home on a Prestigious Private Road in South Croydon. Set within a beautifully wooded and highly sought-after private (unadopted) road in the heart of Kingswood, this charming and spacious 4-bedroom detached family home offers the perfect blend of character, comfort, and lifestyle. Step into a stunning entrance hall that sets the tone for the rest of this impressive property. The ground floor boasts three generous reception rooms, ideal for both entertaining and family living, along with a large Shaker-style kitchen/breakfast room, perfectly suited for modern-day living. Upstairs, the principal bedroom features an en suite shower room, complemented by two further bathrooms serving the remaining bedrooms. A ground floor WC adds to the practicality of the home.



Externally, the property sits behind a charming picket fence with a gravel driveway, leading to an external car port. The large decked area with pergola provides an ideal space for outdoor entertaining, while children will love the tree house nestled among the mature trees. The highlight of the outdoor space is the private swimming pool, perfect for summer enjoyment, along with a shed for additional storage.



This truly unique home offers exceptional family living in a tranquil, leafy setting; early viewing is highly recommended. Council Tax Band G
  • 4 bedroom Detached House
  • Gorgeous Entrance Hall
  • Kitchen / Breakfast room
  • Dining Room
  • 2 Further Reception rooms
  • 4 double bedrooms
  • Principal Bedroom With En suite
  • Family Bathroom
Floorplan for Kingswood Way, South Croydon
EPC Graph for Kingswood Way, South Croydon
Similar Properties

Get an instant online valuation

Find out how much your property is worth