Shord Hill, Kenley

Let Subject to Contract £2,750 PCM

4
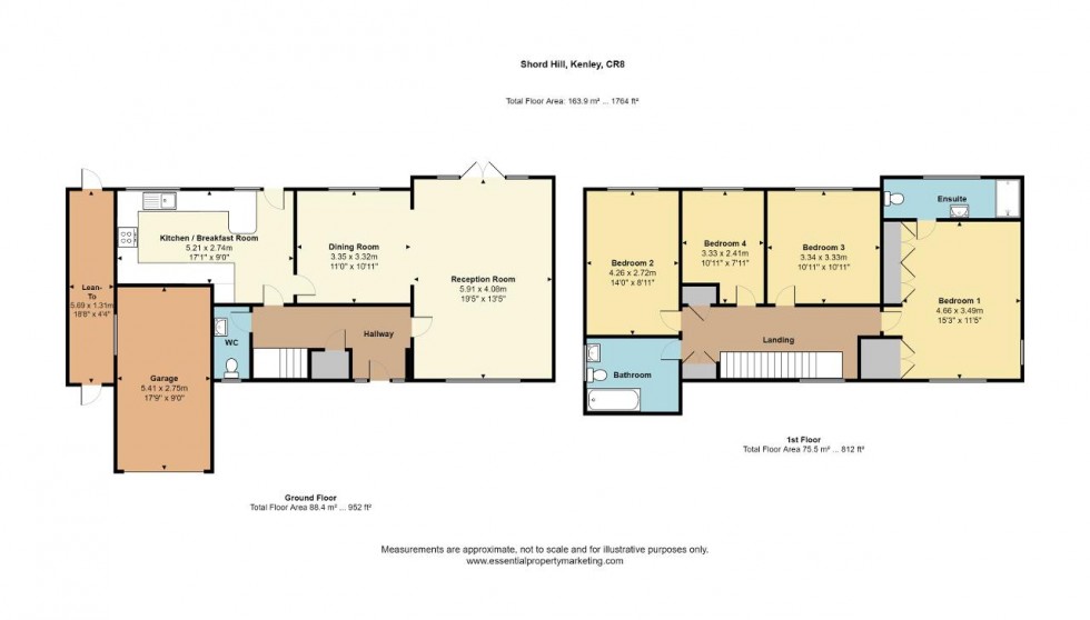
Hubbard Torlot are delighted to offer to the market this lovely four bedroom detached family home situated in a quiet and sought after cul de sac in Kenley (private Road) The property boasts a well presented interior throughout and comprises an enclosed entrance porch, welcoming entrance hall with staircase to the first floor and access to all ground floor rooms, modern cloakroom with w.c, beautiful double aspect L shaped lounge / dining room with double glazed windows to the front and double glazed windows to the rear along with french doors that lead out to the rear garden, modern fitted kitchen / breakfast room with breakfast bar and door to garden. On the first floor is a principle bedroom with beautiful built in wardrobes and a modern refitted en-suite shower room, three further double bedrooms and a modern family bathroom. Adding to the appeal of this home is the beautiful westerly aspect level rear garden with generous patio extending across the width of the property, adjoining level lawn with numerous colourful shrubs and bushes whilst to the front is a lawn area, adjoining drive with parking for several cars and an integral garage. Viewing strongly recommended.
  • Available Immediately
  • 4 Bedroom Detached Home
  • Walking Distance of Kenley Station
  • 2 Bathrooms
  • Lounge & Separate Diner
  • Modern Kitchen
  • Garage and Garden Store
  • Driveway Parking
Floorplan for Shord Hill, Kenley
EPC Graph for Shord Hill, Kenley

Get an instant online valuation

Find out how much your property is worth